設計機構| 潮州百木室內設計機構
項目性質| 住宅公寓
項目地址 | 潮州 · 海博熙泰 ·五期樣品房
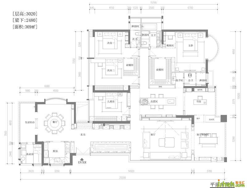
項目面積| 369m2
裝修設計平面圖

“隱”屏風的圓形花窗宛如一輪明月,半遮半透,不一樣的玄空造景設計,可謂別出心裁。如山如月如云, 在形、境、韻的層次上進行感官的疊加。
“寓”一個個間隔一座座威風凜凜的石獅子,而石獅象征著一種富貴吉祥和神圣不可侵犯的氣勢。

“墨”客廳回歸空間自然質樸的天性,沉靜清淡的色彩,讓整個空間的氛圍有著中國濃濃水墨之感。透最本質的材料把中國的朦朧水墨之美呈現。



中國古典設計講究對稱,讓協(xié)調的感覺平衡,與傳統(tǒng)風格一樣追求內斂,樸素。裝修設計搭配上端莊成熟的中式家具,營造出一個充滿文韻與莊重的中式居家氛圍。