白色作為基礎色調(diào),用適當?shù)暮谏鳛辄c綴,裝飾畫是來自于尼泊爾的民間畫家,畫的是一個尼泊爾的當?shù)氐貥私ㄖ?
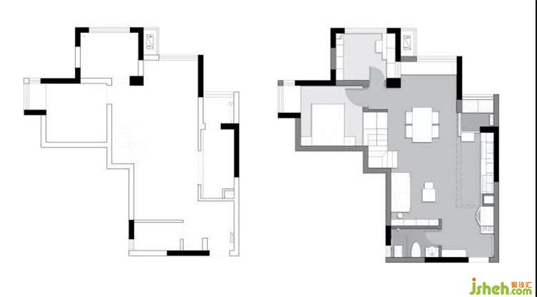
客房柜子因空間相對較小,將樓梯空間打掉,將樓梯下邊做了背對背的儲物柜,靠近臥室側(cè)60公分深度作為衣柜使用,靠近餐廳側(cè)30公分濕度作為餐邊柜使用。
裝修公司
空間相對有限,取消了靠近衣柜的床頭柜,衣柜做了中間懸空設計,依舊可以有床頭柜的使用屬性。

裝修公司

整個衛(wèi)生間以白色作為基調(diào),用綠植作為點綴,當夜光降臨,透過百葉灑下一絲絲的城市霓虹燈,為整個衛(wèi)生間增添了情趣。
